Uudet tekijät
Millaisia projekteja ja ideoita syntyy nuorten arkkitehtien pöydillä? Kahdeksan arkkitehtia, työryhmää tai arkkitehtitoimistoa esittelee tässä jutussa projektin, joka kuvaa heidän lähestymistapaansa rakennettuun ympäristöön.
Teemu-Oskari Kiiveri

Rautjärven uusi kirkko ja kellotapuli
Sijainti Rautjärvi
Laajuus 490 m2
Valmistuminen 2025
Rautjärven vanha kirkko tuhoutui tulipalossa joulupäivän aamuna 2022. Aloin tehdä uuden kirkon tarve- ja hankesuunnittelua seuraavan vuoden alussa diplomityönäni, ja uusi kirkko vihittiin käyttöön elokuussa 2025.
Rautjärven uusi kirkko sijoittuu rinteeseen vanhan varastorakennuksen paikalle, kirkonraunioiden koillispuolelle. Korkoerot mahdollistavat sisäänkäynnit kahdesta tasosta: seurakuntasali asettuu alempaan kerrokseen, alttarin alapuolelle.
Kirkon massoittelu nojaa perinteiseen kirkkoarkkitehtuuriin. Jyrkkä harjakatto ja selkeä muoto tuovat mieleen vanhat maalaiskirkot, samalla kun harmaanvihreä väritys ja valkoiset yksityiskohdat viittaavat edeltäjäänsä. Uuden kirkon siro hahmo antaa kuitenkin tilaa myös raunioille ja niiden historialliselle painoarvolle.
Rakennus asettuu raunioiden ohi kulkevan näkymäakselin päätepisteeksi: sen hiljainen, lähes mykkä julkisivu ja kullattu risti muodostavat rajapinnan arkisen ja pyhän tilan välillä. Kulku jatkuu rakennuksen läpi kohti alttaria ja sen takana avautuvaa järvimaisemaa.
Kaari-ikkunan maisema muodostaa vuodenaikojen mukaan vaihtuvan alttaritaulun. Sen yläpuolelle on nostettu vanhan kirkon palaneista hirsistä koottu risti, joka symboloi uuden ja vanhan myötäeloa. Alttarikaidetta myöten siirreltävät kalusteet mahdollistavat tilan joustavan käytön niin jumalanpalveluksissa kuin yhteisöllisissä tapahtumissa.





Arkkitehtitoimisto Joonas Parviainen, Studio MANA

Hyderabadilainen Studio MANA on Brett Mahonin ja Ramya Nandyalan perustama arkkitehtuuri- ja sisustussuunnittelutoimisto.
Jussinaukio Vertical Garden
Arkkitehdit Joonas Parviainen (Arkkitehtitoimisto Joonas Parviainen), Brett Mahon (Studio MANA)
Sijainti Turku
Laajuus 118 m2
Valmistuminen 2025
Puurakenteinen, modulaarinen ulkoviherseinä liittyy kiinteästi Turun ammattikorkeakoulun ICT-City-rakennuksen julkisivuun. Viherseinä portaineen luo yhteyden katutasolta kattoterassille ja tarjoaa oleskelutilaa kaupunkilaisille.
Seinässä on käytetty monivuotisia kasveja, ja se hillitsee lämpösaarekeilmiötä viilentämällä rakennusta ja välitöntä ympäristöä. Kastelujärjestelmä kerää ja käyttää kasteluun hulevettä, mikä vähentää viemäriverkoston kuormitusta sekä estää huleveteen kertyvän ympäristölle haitallisen aineksen päätymistä vesistöihin.
Vertical Garden on ensimmäinen prototyyppi viherpalveluyritys InnoGreenin konseptista, jossa viherseinä suunnitellaan osaksi olemassa olevaa rakennusta. Konseptiin on mahdollista liittää myös parvekkeita, joilla voidaan kasvattaa rakennuksen asuintilaa. Arkkitehtien yhteistyö InnoGreenin kanssa sai alkunsa ympäristöjärjestö Dodon 25-vuotisjuhlanäyttelyyn Helsingin kaupunginmuseolle suunnitellusta paviljongista. Arkkitehdit ovat tutustuneet arkkitehtiopiskelijoiden kansainvälisessä EASA-kesäkoulussa ja työskennelleet yhdessä vuodesta 2018 lähtien.






Liisa Ryynänen

Sail_Away_It’s_Time_To_Leave
installaatio
2025
Sail_Away_It’s_Time_To_Leave on ulkoinstallaatio, jonka Viron arkkitehtuurimuseo tilasi osaksi Sailing Forward: How the 1980 Olympic Regatta Shaped Tallinn -näyttelyä (30.4.–28.9.2025), joka käsitteli Tallinnassa 45 vuoden takaista olympiavuotta varten tehtyjä kehitysprojekteja.
Museon edustalla kohoava installaatio koostuu rakennustelineistä, metallisista viireistä ja graniittisista askelkivistä, jotka hankin vuonna 1980 valmistuneesta Tallinnan olympiapurjehduskeskuksesta.
Käsittelen teoksen kautta muun muassa monumentaalisuuden ja rappeutumisen sekä muistamisen ja unohtamisen halun välisiä jännitteitä. Fragmentaarinen arkkitehtoninen rakenne saattaa tuoda mieleen portaat, sillan, katsomon tai unen.

Dropped (Feelings) &
Back2Back
veistokset
2025
Dropped (Feelings) ja Back2Back ovat Helsingin Teurastamolla sijaitsevan Pitted Dates -gallerian Let it be known, I am still here -ryhmänäyttelyyn (19.9.–2.11.2025) tilattuja veistoksia.
Pitkänomainen, katosta laskettu veistos Dropped (Feelings) määrittelee galleriatilaa uudelleen. Teos on rakennettu tyypillisen modernin alakaton osista: akustiikkalevyistä, metallikannakkeista ja loisteputkivalaisimista.
Back2Back-veistospari yhdistää metalliset ilmanvaihtokanavat ja täplikkäät eristelevyt temppelimäiseen muotokieleen. Teosten päällä seisoo kaksi 3D-printattua hevosfiguuria, jotka voi nähdä viittauksina esimerkiksi julkisivupatsaisiin tai mittakaavahevosiin.


Wanderlust

Luova
kokous- ja tapahtumatila
Arkkitehdit Johanna Brummer, Heini-Emilia Saari
Sijainti Espoon modernin taiteen museo Emma, Espoo
Laajuus 100m2
Valmistuminen 2025
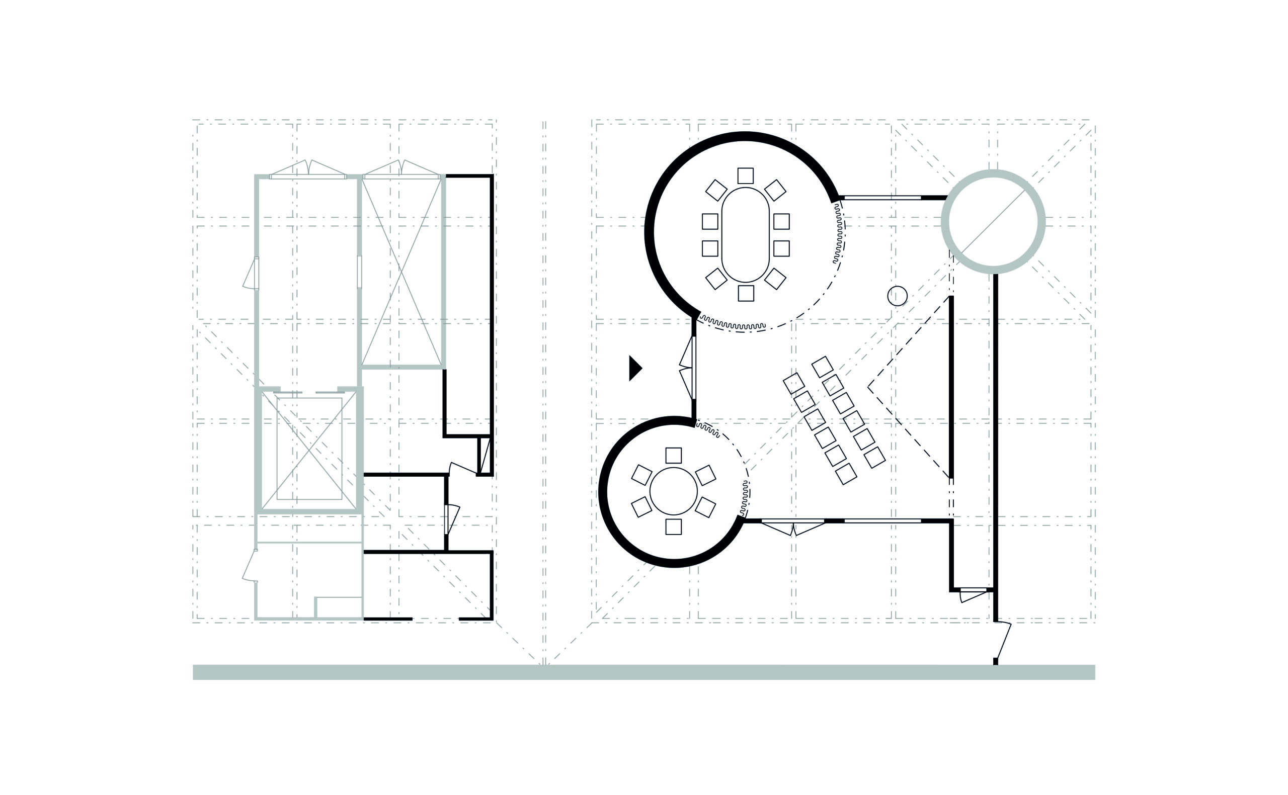
Nykymuseoiden muuttuvat tilat heijastavat yleisön muuttuvia odotuksia, instituutioiden tehtävien uudelleenmäärittelyä ja tarvetta luoda uusia yhteyksiä laajempaan yhteiskuntaan. Tätä taustaa vasten syntyi Luova, Espoon modernin taiteen museon uudenlainen kokous- ja tapahtumatila.
Suunnittelimme Luovasta rohkean ja voimakkaan tilan, joka sijoittuu museon näyttelyiden keskelle, Aarno Ruusuvuoren alun perin suunnitteleman WeeGee-talon (1964, 1967) toiseen kerrokseen. Luovaa käytetään esityksiin, työpajoihin ja yksityistilaisuuksiin. Muina aikoina tila avautuu yleisölle osana näyttelykiertoa ja esittelee videoteoksia Emman kokoelmista.
Konsepti ammentaa inspiraationsa renessanssikeräilijöiden kuriositeettikabineteista ja menneen ajan herrainkabineteista, jotka loivat intiimit ja arvokkaat puitteet keskusteluille suojassa arjen hälyltä. Luova koostuu kahdesta pyöreästä ”kabinetista” – muodollisena viittauksena rakennuksen kookkaisiin betonipyloneihin – sekä niiden väliin rajautuvasta tilasta, jota voidaan jakaa verhoilla eri käyttötarkoituksiin ja tunnelmiin.




keltainen toimisto

Hemmestan vesitorni
kilpailuehdotus ”Jenga”
Arkkitehdit Heljä Nieminen, Havu Järvelä
Sijainti Varmdö, Ruotsi
Valmistuminen 2023
Vesitorni voi olla sekä taajaman luonnetta muovaava infrastruktuurinähtävyys että reitti kohti kestävyystavoitteita, ajattelimme, kun teimme kilpailuehdotuksen puurakenteisesta vesitornista Värmdön kunnan järjestämään yleiseen arkkitehtuurikilpailuun. Pohjoismainen nykyarkkitehtuuri tarjoaa innovatiivisia esimerkkejä niin puisista silloista kuin tornitaloista, mutta puurakentamisen typologiana vesitorni on ennennäkemätön.
Puupalkisto kannattelee tornin teräksisiä vesisäiliöitä siten, että ne ikään kuin leijuvat puiden latvojen yllä. Vesitankki suojaa rakennetta sateelta. Kapea jalusosa jättää minimaalisen jäljen metsäluontoon, kun taas vesisäiliöiden yläosa piirtää latvuston yli tunnistettavan siluetin.
Sijoitimme pitkänomaisen rakennuksen ympäristöönsä siten, että lyhyimmät julkisivut ovat pisimpiä näkymälinjoja kohti. Keskellä, paineentasausaseman päällä on ydin, jossa sijaitsevat hissi, portaikko, työtilat ja putkisto. Puurakenteinen vesitorni on resurssitehokas ratkaisu, joka ei säilö vain vettä vaan myös hiilidioksidia.




Vokal

Muistojen Meri-Rastila
taide- ja tutkimushanke
Arkkitehdit Ella Kaira, Matti Jänkälä
Sijainti Meri-Rastila, Helsinki
Valmistuminen 2025
Muistojen Meri-Rastila -hankkeessa kartoitimme Itä-Helsingissä sijaitsevan kaupunginosan muistoja ja aineettomia arvoja yhdessä paikallisten kanssa. Meri-Rastilaan on suunniteltu kaupunkiuudistusta, joka johtaa nykyisen rakennuskannan merkittävään purkamiseen. Hankkeen tavoitteena oli dokumentoida purettaviin rakennuksiin sitoutuneita merkityksiä sekä tutkia, miten alueen hiljaista tietoa ja sosiaalista elämää voitaisiin tehdä näkyväksi kartografian ja arkkitehtuurin esitystapoja käyttäen.
Keräsimme alueen arvoja asukkailta, vanhoilta ja nykyisiltä asukasaktiiveilta sekä paikallisilta yrittäjiltä työpajoissa, haastatteluilla ja muistokävelyillä. Hankkeen tulokset koottiin kirjaan sekä muistokarttaan. Kartta ja ”osiin purettu” kirja esiteltiin purkamiselta säästyneessä Merirasti-kappelissa, jossa toimii nykyään Kulttuuritila Merirasti. Hanketta rahoittivat Alfred Kordelinin säätiö ja Helsingin kaupunki.





PUBLIC OFFICE

Villach Westbahnhof
kilpailuehdotus (2. sija) ja yleissuunnitelma
Arkkitehdit Leonard Ma, Carmen Lee, Larissa Franz, Sean Tyler
Sijainti Villach, Itävalta
Käynnissä 2019–
Villach Westbahnhofin alueen yleissuunnitelma on tulosta Europan 15 -kilpailusta, jonka teemana oli mukautuva kaupunki. Suunnitelma kasvoi väsymisestä samanlaisina toistuviin umpikortteleihin ja ”inhimillistä mittakaavaa” luovaan kaupunkisuunnitteluun.
Projektissa Aldo Rossin ajatukset typologioista ja Rem Koolhaasin ajatukset kaupunkielämästä yhdistyvät suunnitelmaksi, joka luo yllätyksellisyyttä rinnastamalla katutasossa laatikkomaiset, kookkaat liikerakennukset ja kaupunkikorttelit. Jos pilvenpiirtäjässä kaupunkielämää luotiin erilaisina toisiinsa liittymättömien ohjelmien tasoina, ehkä sama voitaisiin saada aikaan kaupunginosan mittakaavassa?
Kilpailuprosessiin sisältyi tilaustyönä myös jatkokilpailu. Suunnitteluvaatimukset muuttuivat varsin haastaviksi – kyseessä on entinen rautatieaseman alue, jolla on paljon melua koskevia ja teknisiä rajoitteita. Tiimimme teki loppujen lopuksi vaikutuksen tilaajiin ja kaupungin viranomaisiin suunnitelmalla, joka antoi muille käyttötarkoituksille kuin asumiselle, toisin sanoen ”aktiiviselle kaupunkielämälle”, selkeän kaupunkitilallisen muodon.
Yleissuunnitelma on tällä hetkellä poliittisen hyväksymisprosessin viimeisessä vaiheessa, mutta taloudellisen tilanteen vuoksi kestää todennäköisesti jonkin aikaa, ennen kuin alueelle alkaa nousta rakennuksia. Suunnittelemme parhaillaan päiväkotia ja sosiaalista asuntotuotantoa yhdelle tontille ja joustavaa monitoimirakennusta toiselle.



Aie

(s. 1992) ja arkkitehti Kaapo Lipastin (s. 1995) perustama AIE on restaurointiin, korjausrakentamiseen ja käyttömuutossuunnitteluun erikoistunut arkkitehtitoimisto. He ovat työskennelleet Strömforsin ruukin parissa vuodesta 2020 tehden rakennushistoriaselvityksiä, aluekehitystä ja suunnitellen pieniä rakennushankkeita.
Alapajan restaurointi ja käyttömuutokset
Arkkitehdit Astria Excell, Kaapo Lipasti
Sijainti Strömforsin ruukki, Loviisa
Laajuus 560 m2
Valmistuminen 2024
1690-luvulla perustetun Strömforsin rautaruukin vanhin pajarakennus, entinen kankivasarapaja, on suojeltu kaavassa kokonaisuudessaan sr 1-merkinnällä. Suunnittelimme sinne ympärivuotisen juhlatilan ja ravintolan, jotka palvelevat ruukin nykyistä kulttuurimatkailukäyttöä.
1950-luvun jälkeen tehdyt muutokset olivat alkaneet aiheuttaa merkittäviä tiilirakennevaurioita sekä sisäilmaongelmia. Lisäksi rakennuksessa oli käyttöön liittyviä haasteita, kuten elintarviketilojen nykyvaatimuksia täyttämätön kahvila, ulkokautta käytettävät wc–tilat, sekä lattian osittain murtanut museoveturi.
Vanhat betonilattiat purettiin ja täyttömaata kuorittiin pois sen verran, että tilalle saatiin asennettua vaahtolasista kapillaarikatko- ja eristekerros. Päälle valettiin uudet betonilattiat. Vaurioituneet tiilet vaihdettiin alueelta löytyneisiin korvaaviin tiiliin. Ilmanvaihto palautettiin lisäämällä uusia tuloilma-aukkoja sekä vahvistamalla poistoilmavirtausta. Uudet poistoilmakanavat sijoitettiin vanhoihin savupiippuihin.
Muutoksia tehdessä patinaa ja kerroksellisuutta haluttiin vaalia, rakenteisiin tehdä vain vaadittavat korjaukset perinteisin tekniikoin, käyttää ainoastaan materiaaleja, joita alueella oli aiemmin käytetty, sekä erottaa selkeästi uudet rakenteet vanhoista. Kaikissa suunnitteluvalinnoissa haluttiin ammentaa Alapajan historiasta: uuden porraskaiteen malliksi otettiin kankipajan pihdit, uusi naulakko teetettiin paikallisella seppämestarilla, ja tuulikaapit verhoiltiin hiilletyllä mäntypaneelilla heijastuksena pajan alkuperäisistä nokisista työolosuhteista. Muutokset pyrittiin toteuttamaan niin, että ne on mahdollista poistaa tulevaisuudessa historiallista rakennetta vaurioittamatta.












