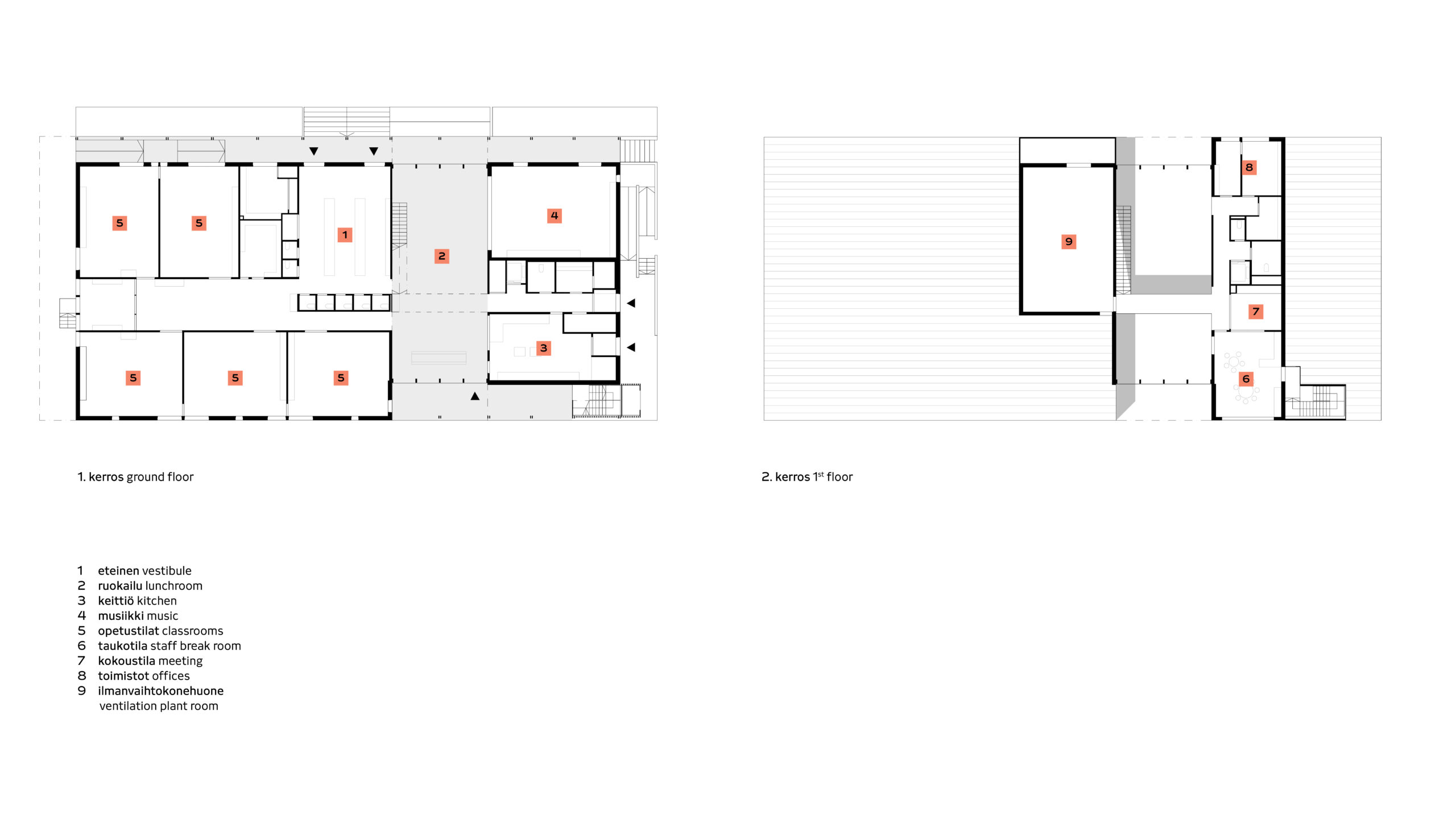
Kontion koulun laajennus
Arkkitehdit Antti Karsikas, Ville-Pekka Ikola
Sijainti Huruntie 16, Kiiminki, Oulu
Laajuus 1 134 m2
Valmistuminen 2025
Valokuvat Ville-Pekka Ikola
Piirustukset alt Arkkitehdit












Arkkitehdit Antti Karsikas, Ville-Pekka Ikola
Sijainti Huruntie 16, Kiiminki, Oulu
Laajuus 1 134 m2
Valmistuminen 2025
Valokuvat Ville-Pekka Ikola
Piirustukset alt Arkkitehdit











